REQUEST A TOUR If you would like to see this home without being there in person, select the "Virtual Tour" option and your agent will contact you to discuss available opportunities.
In-PersonVirtual Tour

$15
29,023 SqFt
UPDATED:
Key Details
Property Type Commercial
Sub Type Office
Listing Status Active
Purchase Type For Rent
Square Footage 29,023 sqft
MLS Listing ID 2112689
HOA Y/N No
Year Built 1997
Annual Tax Amount $52,237
Lot Size 1.600 Acres
Acres 1.6
Property Sub-Type Office
Source realMLS (Northeast Florida Multiple Listing Service)
Property Description
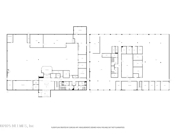
Well-positioned in Jacksonville's Southside, this two-story 29,455 SF office building is situated on 1.6 acres with 72 parking spaces, plus an additional 2-acre parcel providing approximately 136 more spaces. Fully built out for call center or government use, the layout features a high-capacity open floor plan with multiple private offices, large training and conference rooms, dedicated IT spaces, and break areas designed for workforce efficiency.
The property offers dual entry points off Sunbeam Center Drive and Hood Road with excellent visibility and signage opportunities from Sunbeam Road. Convenient access to US-1 and I-95 ensures strong regional connectivity for employees and visitors. Existing infrastructure includes extensive data cabling, power distribution, fiber connectivity, two 250 KW generators, and a 50 KW UPS system, providing robust support for technology-driven operations.
The property offers dual entry points off Sunbeam Center Drive and Hood Road with excellent visibility and signage opportunities from Sunbeam Road. Convenient access to US-1 and I-95 ensures strong regional connectivity for employees and visitors. Existing infrastructure includes extensive data cabling, power distribution, fiber connectivity, two 250 KW generators, and a 50 KW UPS system, providing robust support for technology-driven operations.
Location
State FL
County Duval
Area 013-Beauclerc/Mandarin North
Direction Head south on I-295, take the exit toward Sunbeam Road, continue east, then turn onto Sunbeam Center Drive, where the destination will be located within the business park area.
Interior
Cooling Central Air
Exterior
Parking Features Other, Parking Lot, Unassigned
Accessibility Common Area
Private Pool No
Building
Lot Description Other
Story 2
Level or Stories 2
Others
Tax ID 149082-0020
Read Less Info
Listed by COLDWELL BANKER PREMIER PROPERTIES • ERIC MAIMO
Let's talk about your home goals!




